

In the heart of Caracas, Villa Panza Uguzzoni redefines contemporary architecture with ‘Organic Fusion.’ Curved and angled walls optimize space while paying homage to sculpture and art, creating harmony with the natural terrain.
In the heart of Caracas, nestled within the lush tropical landscape,
Villa Panza Uguzzoni in Colinas de Vista Alegre redefines contemporary architecture with a concept we call “Organic Fusion.” This concept draws inspiration from both the natural world and the realm of sculpture and art.




Concept
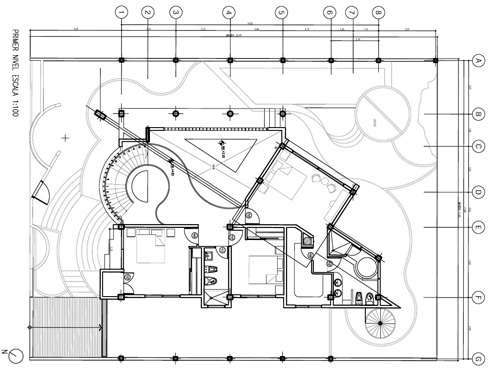
The key feature of this concept is the incorporation of curved and angled walls throughout the house, which serves a dual purpose. Firstly, it optimizes space utilization, ensuring that every corner of the house is functional and aesthetically pleasing. The curved walls not only create dynamic visual interest but also enable efficient use of space, allowing for seamless transitions between rooms while maximizing openness and flow.
Secondly, the curved and angled walls pay homage to the forms found in sculpture and art, emphasizing the idea that the house itself is a work of art in the midst of nature. These unconventional angles and curves evoke a sense of movement and fluidity, blurring the lines between indoor and outdoor spaces. They also serve to harmonize the structure with the natural contours of the solid stone terrain, creating a sense of unity with the environment.
The use of concrete as the primary structural material reinforces the connection between the house and its surroundings, with its earthy tones and textures mirroring the rugged beauty of the Venezuelan landscape. Large, strategically placed windows and open spaces embrace the tropical climate, inviting the lush greenery and natural light into the living spaces.
In essence, Villa Panza Uguzzoni is not just a residence; it is a living sculpture that seamlessly marries the practicality of modern architecture with the organic and artistic elements of nature. It stands as a testament to the beauty of harmony between the built environment and the natural world, offering a truly unique and inspiring living experience in the heart of Caracas.


