

The “Dynamic Privacy Hub” concept for the “Matic Office” redefines the traditional office space. It acknowledges that work is no longer confined to rigid boundaries and encourages flexibility, privacy, and collaboration in equal measure. It’s a space that adapts to the ever-evolving needs of modern professionals, ensuring that they can work comfortably, creatively, and efficiently.
The central concept guiding this design is the “Dynamic Privacy Hub.”
Matic Office is a testament to the idea that the modern workspace should be a dynamic and versatile environment, fostering both collaboration and privacy as needed




Concept
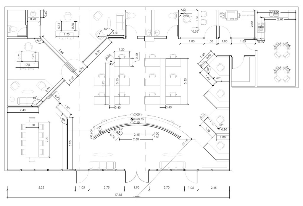
As you enter the office, the first striking feature is the grand curved wall at the entrance. This curvilinear element not only adds an artistic flair but also serves as a symbolic threshold, welcoming employees and clients into a space that is innovative and forward-thinking. It’s an invitation to step into an environment that transcends traditional office norms.
The asymmetrical layout of the office spaces is a conscious choice to break away from the conventional and embrace the dynamic nature of modern work. The diagonal placement of private cubicles for employees not only maximizes the use of available space but also enhances privacy. This design allows employees to have a comfortable and private workspace while also facilitating interaction when needed.
This diagonal orientation extends to larger offices as well, where the 45-degree walls create semi-enclosed areas. These spaces offer a balance between openness and seclusion, allowing teams to collaborate effectively while maintaining individual concentration and privacy.
The majority of the office space is designed as an open-plan layout, promoting a sense of unity and transparency among team members. This approach encourages spontaneous interactions and creative brainstorming sessions.
The extensive use of glass for internal walls optimizes the utilization of natural light that streams in from a single faceted window. This not only reduces the reliance on artificial lighting but also connects the interior with the outside world. It creates a sense of spaciousness and openness, making the workspace feel welcoming and energizing.
