

The “Luminous Prism Retreat” celebrates the union of architecture and nature. The design concept not only maximizes the views and the play of light but also enhances the overall quality of life within the residence. It is a testament to the beauty of living in harmony with the stunning natural surroundings while enjoying the comforts of modern luxury.
Nestled in the scenic mountainous landscape of Caracas, the “Prism House” represents a harmonious blend of architectural innovation and natural splendor.
The design concept behind this remarkable dwelling is the “Luminous Prism Retreat.”




Concept
The defining feature of this concept is the extensive use of large glass windows that span across multiple directions, offering panoramic views of the city and the majestic mountains. These expansive windows serve a dual purpose. Firstly, they celebrate the breathtaking natural surroundings, connecting the inhabitants with the ever-changing beauty of the landscape. Secondly, they create a play of light, transforming the interior into a mesmerizing prism when the sunlight pours in. This interplay of light and shadow throughout the day immerses the residents in a dynamic and ever-evolving atmosphere.
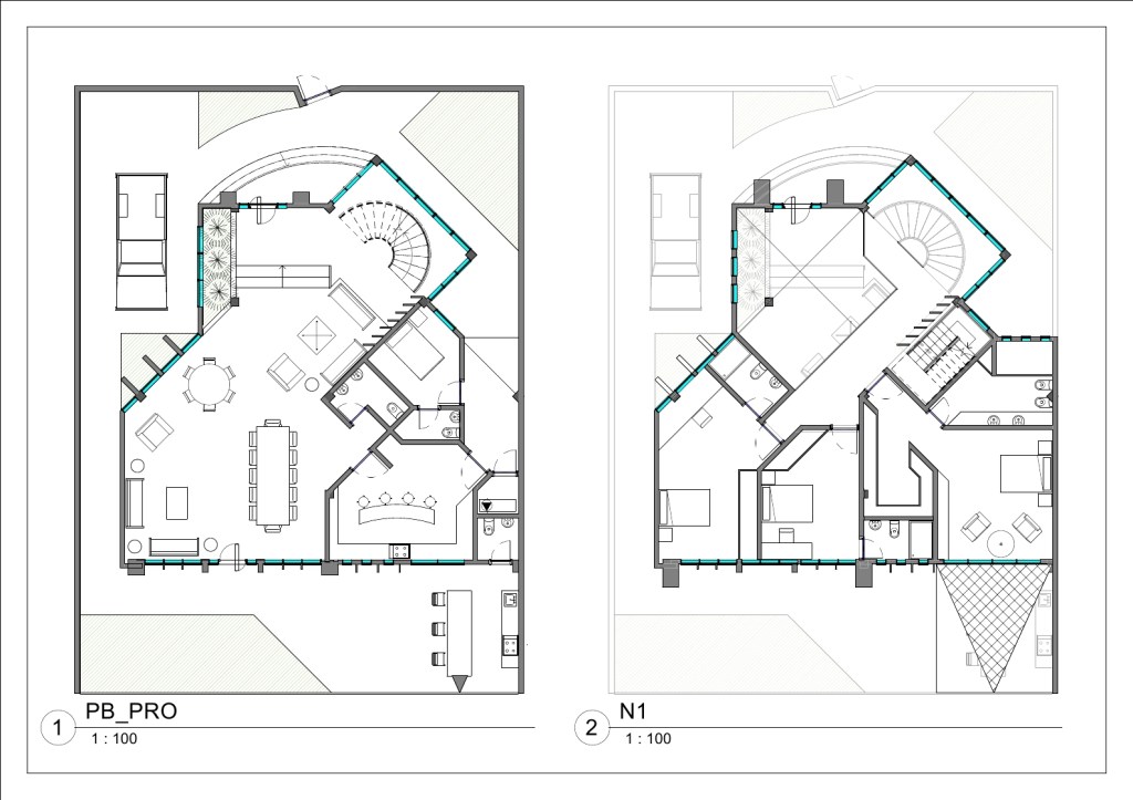
The “Prism House” stands tall with three floors, each carefully designed to offer a distinct purpose. The lower floor embodies the concept of open living, with spacious common areas that seamlessly blend with the lush exterior. A sprawling garden, complete with a relaxation and dining area, provides a tranquil escape for residents to enjoy the mountain breeze and city lights.
One of the notable features of the house is the grand spiral staircase crafted from exquisite marble, connecting the levels with grace and sophistication. The double-height spaces create a sense of grandeur and spaciousness, allowing natural light to cascade through the interior.
The upper floors are dedicated to the private sanctuaries of the residents. Here, large windows frame different perspectives of the landscape, providing breathtaking vistas from every angle. Each bedroom is a retreat, where one can wake up to the gentle kiss of sunlight and fall asleep under the starry Caracas night.
