

JUMP office in Las Mercedes is more than just a workspace; it’s a dynamic and welcoming environment that fosters innovation, collaboration, and productivity. The “Harmonious Flow” concept brings together the comfort of a home-like embrace and the energy of forward movement, creating an inspiring and efficient workplace for the JUMP team.
Situated in the vibrant city of Caracas, Venezuela, the JUMP office in Las Mercedes embodies the concept of “Harmonious Flow.”
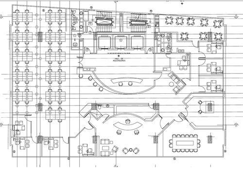
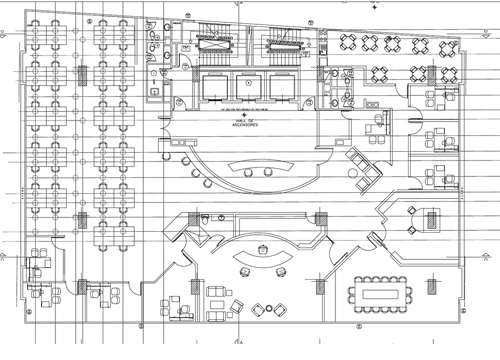
This innovative design concept revolves around the integration of curved walls and diagonal partitions, creating a dynamic and welcoming workspace.




Concept
The curved walls in the office serve a dual purpose. In the concave areas, they envelop visitors and employees, providing a sense of warmth and welcome. These curves mimic the contours of a friendly embrace, making everyone feel at home as they enter the workspace. This concave design element fosters a sense of community and inclusivity, encouraging collaboration and open communication among team members.
On the other hand, the diagonal walls, set at a 45-degree angle, introduce an element of dynamism and fluidity into the office. These walls represent movement and progress, symbolizing the forward-thinking and innovative nature of the JUMP brand. They create unique spaces within the office, facilitating different functional areas while maintaining an open and interconnected environment.
The combination of curved and diagonal walls not only provides visual interest but also enhances the functionality of the office. The design optimizes the use of space, ensuring that every square meter serves a purpose. Additionally, the layout maximizes natural light and ventilation, creating a comfortable and energizing work atmosphere.
Our architectural and interior design also includes meticulous attention to building services, ensuring top-notch functionality for electricity, phone/data, plumbing, air conditioning, firefighting equipment, alarm systems, and fire suppression. The choice of final materials reflects the sleek, modern aesthetic of the JUMP brand.









